previous listing

next listing



house for sale

155 Av. Joubert
Dorval, H9S5L7

MLS # 23848063

Refrigerator, cook top, dishwasher, refrigerator and a cook top in the basement, generator, light fixtures, all sold without warranty.

$ 1,475,000
Living area
2.301k ft2
Land area
650 ft2
Bedrooms
5
Bathrooms
3
print this listing
  • Heating system: Air circulation, Other
  • Water supply: Municipality
  • Heating energy: Electricity, Propane
  • Equipment available: Central air conditioning
  • Foundation: Poured concrete
  • Hearth stove: Other, Gaz fireplace
  • Garage: Attached, Single width
  • Proximity: Highway, Cegep, Daycare centre, Golf, Hospital, Park - green area, Bicycle path, Elementary school, High school, Public transport
  • Bathroom / Washroom: Adjoining to the master bedroom
  • Basement: 6 feet and over, Other, Finished basement
  • Parking: Garage
  • Sewage system: Municipal sewer
  • Landscaping: Fenced
  • Roofing: Asphalt shingles
  • Zoning: Residential
  • Municipal Taxes: $5,320 / year
  • School taxes: $1,041 / year

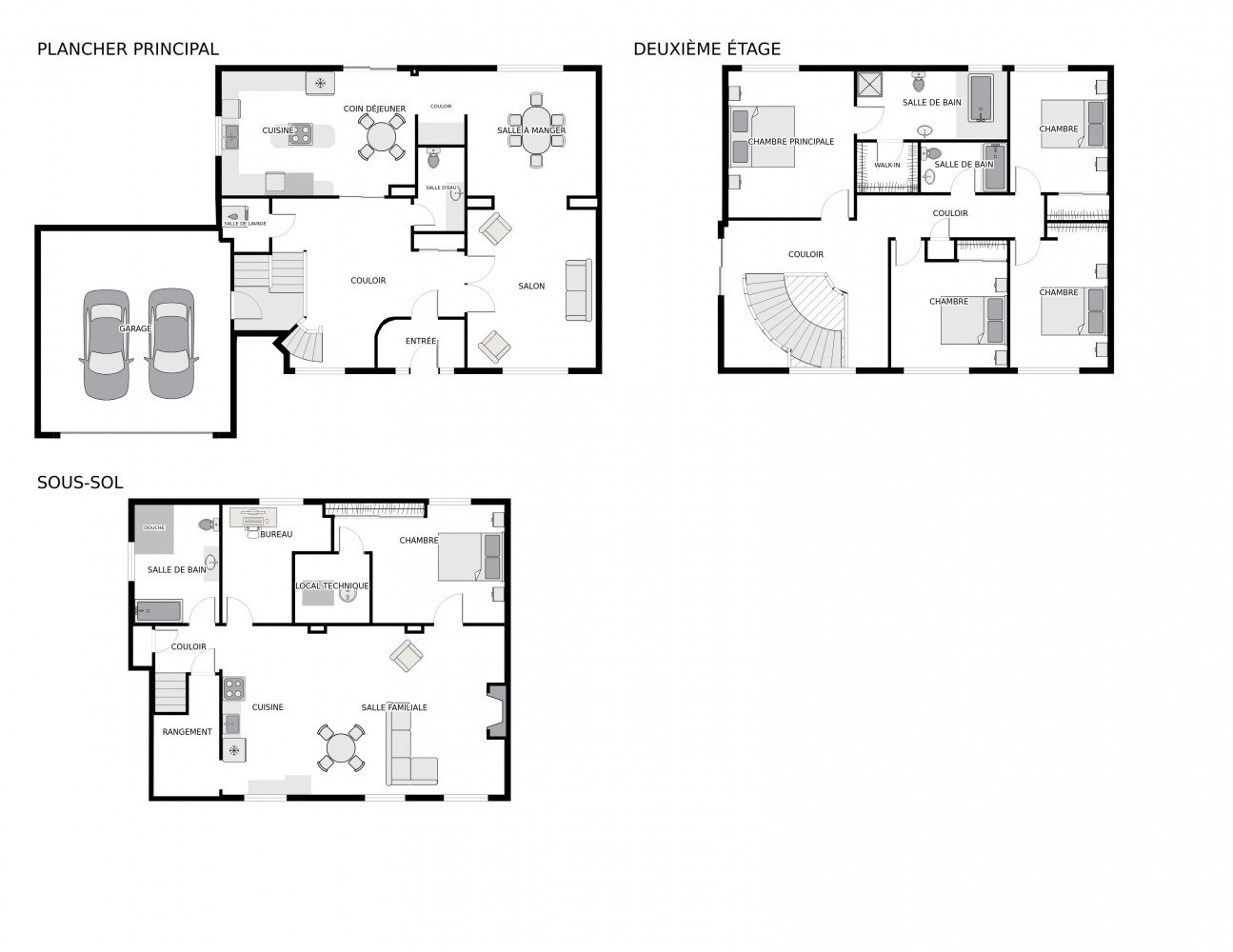
Rooms

Room Level Dimensions Flooring Description
Hallway First floor 9.0x5.0 P Ceramic tiles
Den First floor 19.9x17.6 P Ceramic tiles
Living room First floor 13.3x16.4 P Parquetry
Dining room First floor 13.4x12.10 P Parquetry
Kitchen First floor 11.9x12.10 P Ceramic tiles
Dinette First floor 8.4x12.10 P Ceramic tiles
Washroom First floor 4.10x8.8 P Ceramic tiles
Laundry room First floor 4.11x5.6 P Ceramic tiles
Den 2nd floor 17x15.2 P Carpet
Master bedroom 2nd floor 13x15.2 P Carpet
2nd floor 6.4x5.2 P Carpet
Bathroom 2nd floor 15.7x7.1 P Ceramic tiles
Bedroom 2nd floor 10.1x12.6 P Carpet
Bedroom 2nd floor 10.1x15 P Carpet
Bedroom 2nd floor 12x13.1 P Carpet
Bathroom 2nd floor 8.11x5.2 P Ceramic tiles
Family room Basement 19.1x17.6 P Floating floor
Kitchen Basement 9.5x17.6 P Floating floor
Bedroom Basement 17.8x12.3 P Floating floor
Home office Basement 11.2x12.3 P Floating floor
Bathroom Basement 8.9x12.3 P Ceramic tiles
Storage Basement 6.7x12.5 P Floating floor

contact agent

Residential and Commercial Real Estate Broker / Agency Executive Officer

Kayla Samuels

514-515-6252
kayla@luxurymtl.com
Send